Beschreibung
Niché dans un village à proximité de Romont, dans un environnement calme, cet appartement neuf de très bon standing saura vous séduire.
De construction moderne, il pourra vous accueillir dès le printemps 2026.
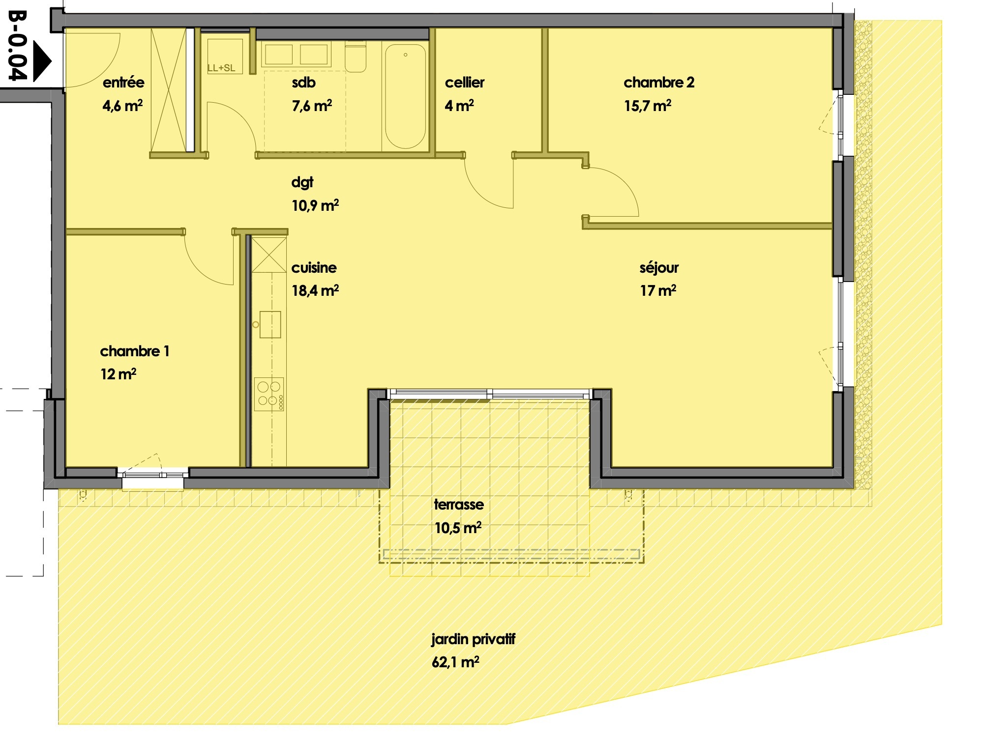
Avec ses 93 m2 de surface habitable et ses 3,5 pièces, il offre une ambiance chaleureuse et accueillante.
Il est réalisé dans un style contemporain, élaboré avec des matériaux de haute qualité.
Profitez de ses chambres lumineuses, d'une terrasse de 10,5 m2 et du jardin privatif de 62,1 m2, idéal pour les après-midis ensoleillés...
De construction moderne, il pourra vous accueillir dès le printemps 2026.
Avec ses 93 m2 de surface habitable et ses 3,5 pièces, il offre une ambiance chaleureuse et accueillante.
Il est réalisé dans un style contemporain, élaboré avec des matériaux de haute qualité.
Profitez de ses chambres lumineuses, d'une terrasse de 10,5 m2 et du jardin privatif de 62,1 m2, idéal pour les après-midis ensoleillés...
Lage
Prévus dans un environnement calme, cet immeuble de 15 appartements, doté d’un parking souterrain commun est idéalement implanté en dehors de la circulation.
L'arrêt de bus pour l'école secondaire et la gare de Romont est situé à 200 mètres.
La majorité des commodités de la commune de Siviriez se trouve dans un rayon de 500 mètres.
L'arrêt de bus pour l'école secondaire et la gare de Romont est situé à 200 mètres.
La majorité des commodités de la commune de Siviriez se trouve dans un rayon de 500 mètres.
Eigenschaften
Umgebung
- Dorf
- Ländlich
- Geschäfte
- Bank
- Restaurant(s)
- Bushaltestelle
- Kinderfreundlich
- Spielplatz
- Kindergarten
- Primarschule
- Sportzentrum
- Wanderwege
- Religiöse Bauten
Aussenbereich
- Terrasse(n)
- Garten
- Ruhige Lage
- Begrünung
Innenbereich
- Behindertengerecht
- Lift
- Tiefgarage
- Offene Küche
- Keller
- Fahrradraum
- Schutzraum
- Abstellraum
- Teilweise möbliert
- Dreifachverglasung
- Hell
Ausstattung
- Moderne Küche
- Möblierte Küche
- Glaskeramik
- Backofen
- Kühlschrank
- Tiefkühler
- Geschirrspüler
- Anschlüsse für Wasch-Trocken-Säule
- Badewanne
- Photovoltaik-Paneele
Boden
- Fliesen
- Parkett
Zustand
- Neu
Ausrichtung
- Norden
- Osten
Besonnung
- Optimal
- Morgensonne
Aussicht
- Schöne Aussicht
Stil
- Modern
Distanzen
Bahnhof
4.5 km
Öffentliche Verkehrsmittel
200 m
Autobahn
8.5 km
Kindergarten
4.5 km
Primarschule
100 m
Sekundarschule
4 km
Geschäfte
300 m
Post
300 m
Bank
100 m
Restaurants
200 m
Park / Grünfläche
500 m



