Description
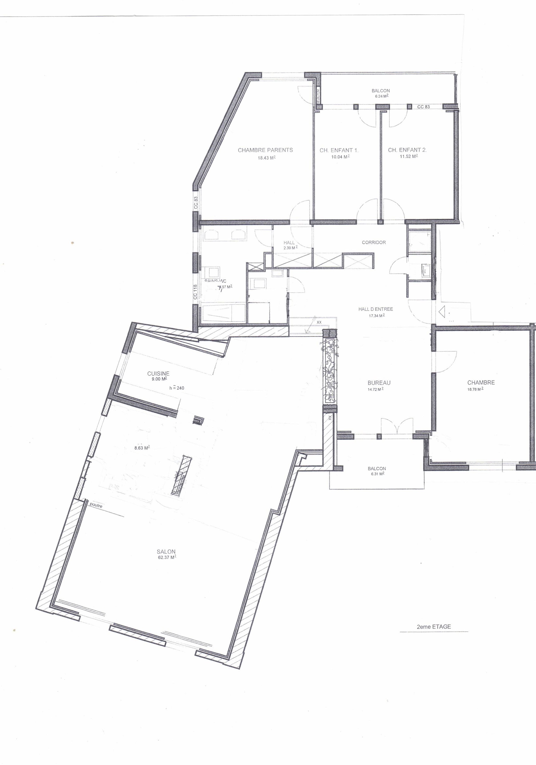
Magnifique appartement de 6.5 pièces au 2ème étage d'un petit immeuble de 7 logements, partiellement mansardé, rénové dernièrement, proche de toutes les commodités.
Son espace à vivre, lové sous une magnifique charpente, est accessible par quelques marches d'escaliers.
Agrémenté d'un balcon du matin et d'un balcon du soir surplombant la rivière l'Arbogne, cet appartement rare ne manque pas de charme.
Très spacieux et exposé au sud et à l'ouest, il se compose de :
- 1 espace à vivre de plus de 80m2 avec cuisine semi-ouverte
- 4 chambres
- 1 grand espace bureau
- 1 salles de bain WC, lavabo, baignoire
- 1 salles de bain WC, lavabo, douche
- 1 hall spacieux, avec quelques armoires murales
- 2 balcons
Annexes :
Un garage avec accès direct vers l'intérieur 120.-/mois
1 place de parc extérieure 50.-/mois
Remarques :
L'immeuble est sans ascenseur
La rénovation vient d'être terminée
Chauffage au gaz
Son espace à vivre, lové sous une magnifique charpente, est accessible par quelques marches d'escaliers.
Agrémenté d'un balcon du matin et d'un balcon du soir surplombant la rivière l'Arbogne, cet appartement rare ne manque pas de charme.
Très spacieux et exposé au sud et à l'ouest, il se compose de :
- 1 espace à vivre de plus de 80m2 avec cuisine semi-ouverte
- 4 chambres
- 1 grand espace bureau
- 1 salles de bain WC, lavabo, baignoire
- 1 salles de bain WC, lavabo, douche
- 1 hall spacieux, avec quelques armoires murales
- 2 balcons
Annexes :
Un garage avec accès direct vers l'intérieur 120.-/mois
1 place de parc extérieure 50.-/mois
Remarques :
L'immeuble est sans ascenseur
La rénovation vient d'être terminée
Chauffage au gaz
Situation
Au centre de Corcelles, au bord de l'Arbogne, proche de la gare
Municipality
https://corcelles.ch
Conveniences
Neighbourhood
- Village
- Shopping street
- Railway station
- Bus stop
- Highway entrance/exit
- Hospital / Clinic
- Doctor
Outside conveniences
- Garden in co-ownership
- Parking
- Garage
Inside conveniences
- Garage
- Open kitchen
- Private bathroom
- Cellar
- Storeroom
- Built-in closet
- With front and rear view
- Exposed beams
- With character
- Timber frame
Equipment
- Furnished kitchen
- Ceramic glass cooktop
- Oven
- Fridge
- Freezer
- Dishwasher
- Shower
- Bath
- Internet connection
Floor
- Tiles
- Parquet floor
Condition
- Renovated
Orientation
- South
- West
Exposure
- Optimal
- All day
View
- Stream
Distances
Station
400 m
7'
-
-
Public transports
400 m
7'
-
-
Freeway
4.2 km
-
-
8'
Primary school
1.75 km
30'
20'
5'
Stores
50 m
1'
-
-
Post office
60 m
2'
-
-
Bank
550 m
9'
-
-
Restaurants
50 m
1'
-
-



