Description
Niché dans un village à proximité de Romont, dans un environnement calme, cet appartement neuf de très bon standing saura vous séduire.
De construction moderne, il pourra vous accueillir dès le printemps 2026.
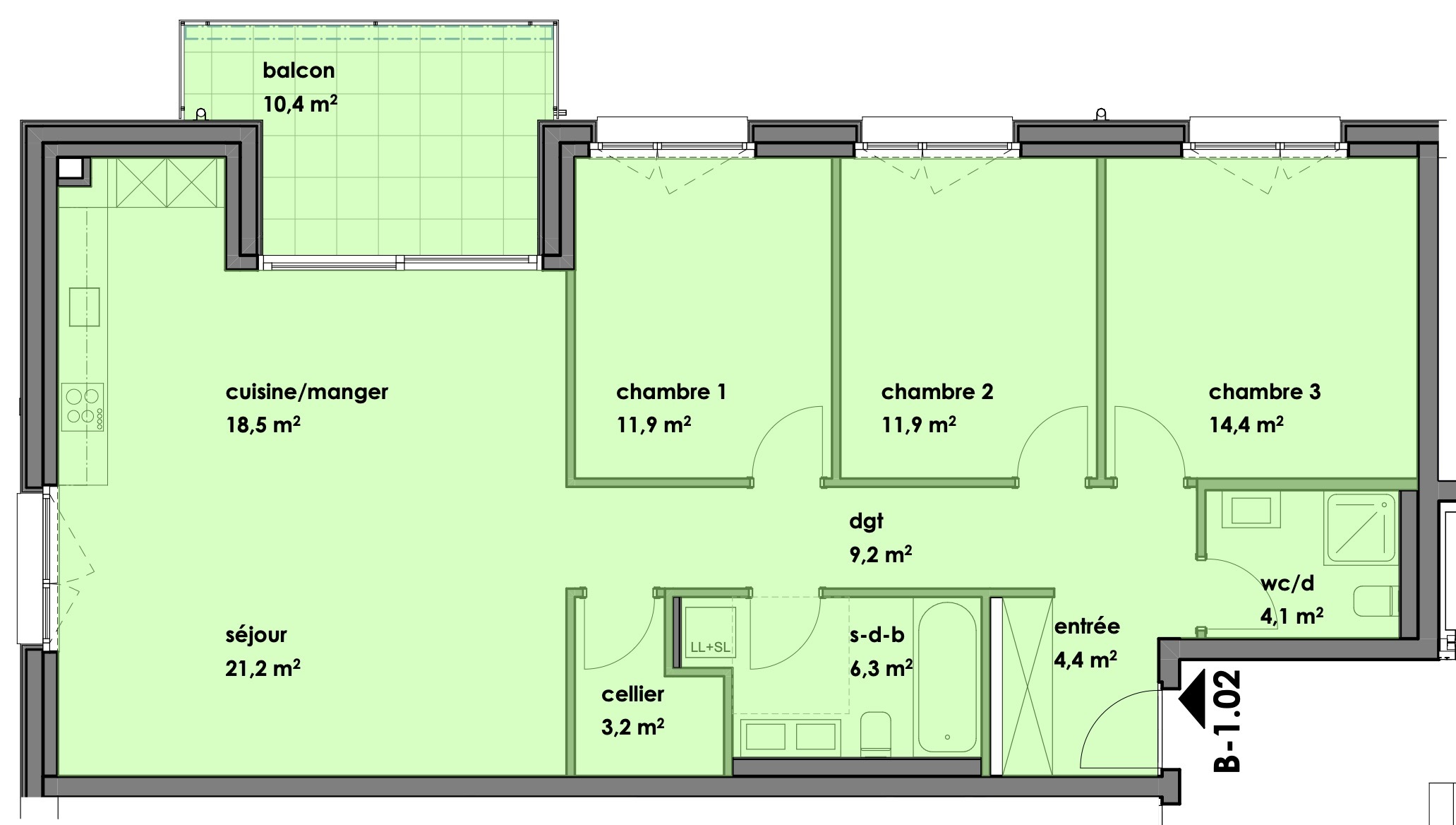
Découvrez ce magnifique appartement situé à Siviriez. Ce logement neuf vous offre un style de vie moderne et élégant. Avec ses 4.5 pièces, dont trois chambres spacieuses, chaque détail a été soigneusement pensé pour votre confort. Sa surface habitable de 108.7 m² promet espace et luminosité.
Vous aimerez passer du temps sur le balcon de 10,4 m2.
Ne manquez pas cette opportunité rare de vivre dans un lieu alliant nature et commodités modernes.
    De construction moderne, il pourra vous accueillir dès le printemps 2026.
Découvrez ce magnifique appartement situé à Siviriez. Ce logement neuf vous offre un style de vie moderne et élégant. Avec ses 4.5 pièces, dont trois chambres spacieuses, chaque détail a été soigneusement pensé pour votre confort. Sa surface habitable de 108.7 m² promet espace et luminosité.
Vous aimerez passer du temps sur le balcon de 10,4 m2.
Ne manquez pas cette opportunité rare de vivre dans un lieu alliant nature et commodités modernes.
Situation
Prévus dans un environnement calme, cet immeuble de 15 appartements, doté d’un parking souterrain commun est idéalement implanté en dehors de la circulation.
L'arrêt de bus pour l'école secondaire et la gare de Romont est situé à 200 mètres.
La majorité des commodités de la commune de Siviriez se trouve dans un rayon de 500 mètres.
    L'arrêt de bus pour l'école secondaire et la gare de Romont est situé à 200 mètres.
La majorité des commodités de la commune de Siviriez se trouve dans un rayon de 500 mètres.
Conveniences
Neighbourhood
- Village
- Green
- Shops/Stores
- Bank
- Restaurant(s)
- Bus stop
- Child-friendly
- Playground
- Preschool
- Primary school
- Sports centre
- Hiking trails
- Religious monuments
Outside conveniences
- Balcony/ies
- Quiet
- Greenery
Inside conveniences
- Wheelchair-friendly
- Lift/elevator
- Underground car park
- Open kitchen
- Cellar
- Bicycle storage
- CP-Shelter
- Storeroom
- Partially furnished
- Triple glazing
- Bright/sunny
Equipment
- Fitted kitchen
- Furnished kitchen
- Ceramic glass cooktop
- Oven
- Fridge
- Freezer
- Dishwasher
- Connections for washing tower
- Bath
- Shower
- Photovoltaic panels
Floor
- Tiles
- Parquet floor
Condition
- New
Orientation
- North
- South
- West
Exposure
- Optimal
- In the evening
View
- Nice view
Style
- Modern
Distances
                    Station                
                
                    4.5 km                
                                                            
                    Public transports                
                
                    200 m                
                                                            
                    Freeway                
                
                    8.5 km                
                                                            
                    Nursery school                
                
                    4.5 km                
                                                            
                    Primary school                
                
                    100 m                
                                                            
                    Secondary school                
                
                    4 km                
                                                            
                    Stores                
                
                    300 m                
                                                            
                    Post office                
                
                    300 m                
                                                            
                    Bank                
                
                    100 m                
                                                            
                    Restaurants                
                
                    200 m                
                                                            
                    Park / Green space                
                
                    500 m                
                                                            


