Description
Niché dans un village à proximité de Romont, dans un environnement calme, cet appartement neuf de très bon standing saura vous séduire.
De construction moderne, il pourra vous accueillir dès le printemps 2026.
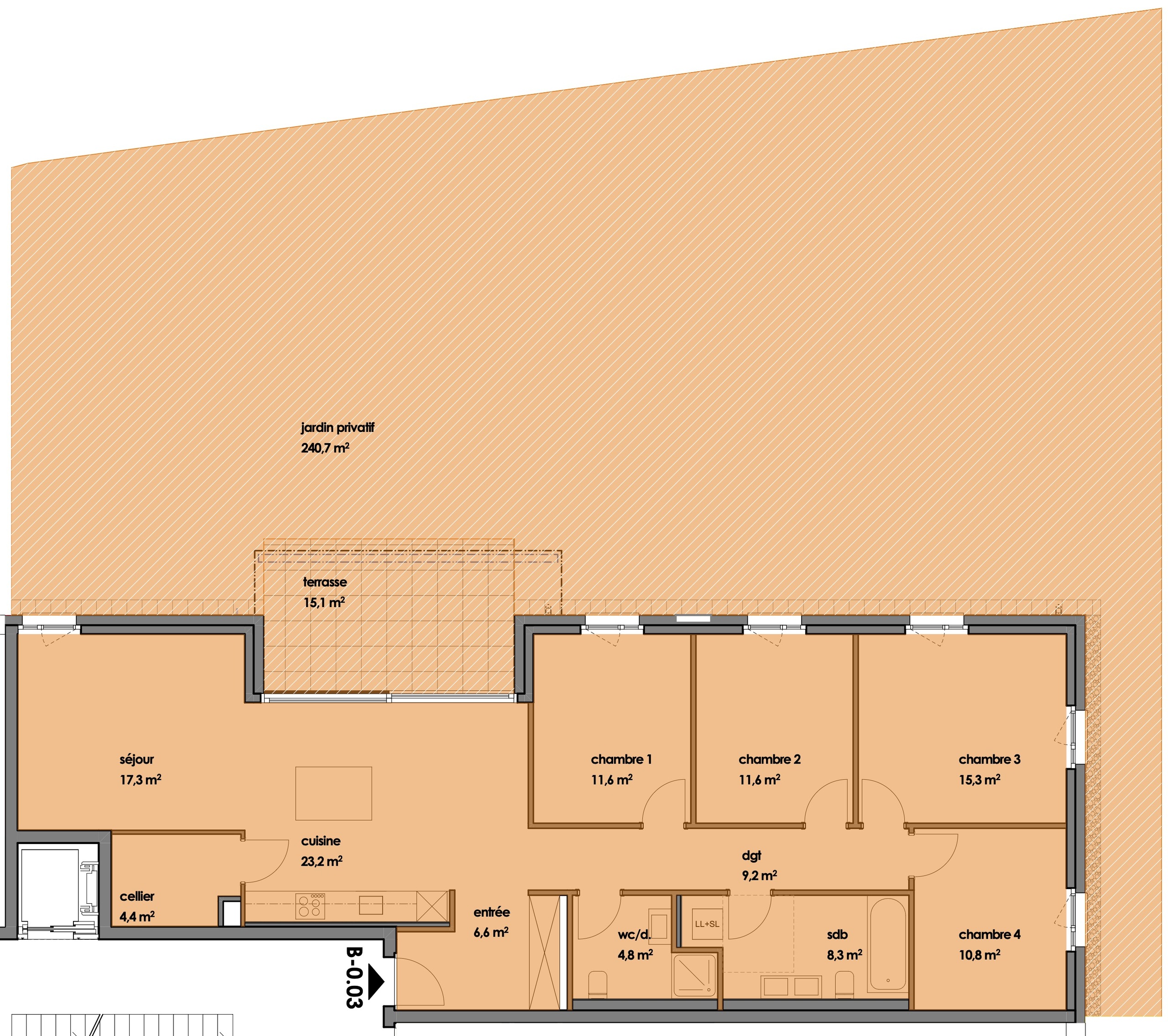
D'une surface habitable de 127.3 m², ce magnifique appartement parfaitement agencé, spacieux et lumineux, offre une combinaison parfaite entre confort et tranquillité.
Il est réalisé dans un style contemporain, élaboré avec des matériaux de haute qualité.
Profitez de ses quatre chambres lumineuses, d'une terrasse de 15.1 m² pour des soirées inoubliables et d'un jardin privatif de 240.7 m² offrant une vue verdoyante sur un environnement paisible.
De construction moderne, il pourra vous accueillir dès le printemps 2026.
D'une surface habitable de 127.3 m², ce magnifique appartement parfaitement agencé, spacieux et lumineux, offre une combinaison parfaite entre confort et tranquillité.
Il est réalisé dans un style contemporain, élaboré avec des matériaux de haute qualité.
Profitez de ses quatre chambres lumineuses, d'une terrasse de 15.1 m² pour des soirées inoubliables et d'un jardin privatif de 240.7 m² offrant une vue verdoyante sur un environnement paisible.
Situation
Prévus dans un environnement calme, cet immeuble de 15 appartements, doté d’un parking souterrain commun est idéalement implanté en dehors de la circulation.
L'arrêt de bus pour l'école secondaire et la gare de Romont est situé à 200 mètres.
La majorité des commodités de la commune de Siviriez se trouve dans un rayon de 500 mètres.
L'arrêt de bus pour l'école secondaire et la gare de Romont est situé à 200 mètres.
La majorité des commodités de la commune de Siviriez se trouve dans un rayon de 500 mètres.
Conveniences
Neighbourhood
- Village
- Green
- Shops/Stores
- Bank
- Restaurant(s)
- Bus stop
- Child-friendly
- Playground
- Preschool
- Primary school
- Sports centre
- Hiking trails
- Religious monuments
Outside conveniences
- Terrace/s
- Garden
- Quiet
- Greenery
Inside conveniences
- Wheelchair-friendly
- Lift/elevator
- Underground car park
- Open kitchen
- Cellar
- Bicycle storage
- CP-Shelter
- Storeroom
- Partially furnished
- Triple glazing
- Bright/sunny
Equipment
- Furnished kitchen
- Fitted kitchen
- Ceramic glass cooktop
- Oven
- Fridge
- Freezer
- Dishwasher
- Connections for washing tower
- Shower
- Bath
- Photovoltaic panels
Floor
- Tiles
- Parquet floor
Condition
- New
Orientation
- North
- West
Exposure
- Optimal
- In the evening
View
- Nice view
Style
- Modern
Distances
Station
4.5 km
Public transports
200 m
Freeway
8.5 km
Nursery school
4.5 km
Primary school
100 m
Secondary school
4 km
Stores
300 m
Post office
300 m
Bank
100 m
Restaurants
200 m
Park / Green space
500 m



