Descriptif
Découvrez ce magnifique appartement prévu dans un village à proximité de Romont, dans un environnement calme et verdoyant.
De construction moderne, il pourra vous accueillir dès le printemps 2026.
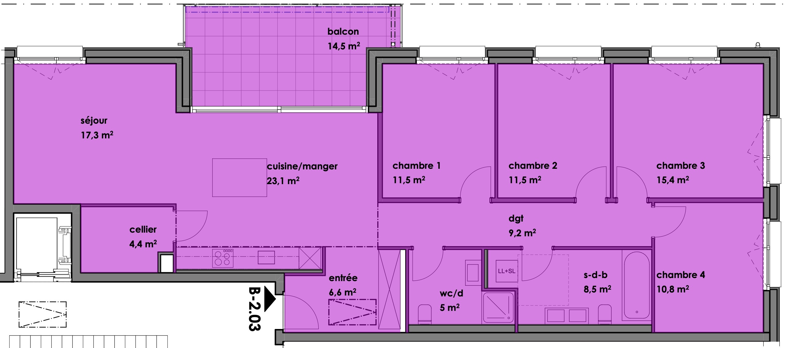
D'une surface habitable généreuse de 127,3 m², avec 4 chambres, ce beau 5.5 pièces offre une ambiance chaleureuse et accueillante.
Il est réalisé dans un style contemporain, élaboré avec des matériaux de haute qualité.
Idéal pour savourer votre café matinal ou vous détendre en fin de journée, un grand balcon de 14,5 m² complète ce bien.
Le bâtiment est équipé d'un système de refroidissement free cooling disponible pour chaque appartement. Le rafraîchissement via le chauffage au sol existant est la solution économique pour rendre la température ambiante plus confortable en été.
De construction moderne, il pourra vous accueillir dès le printemps 2026.
D'une surface habitable généreuse de 127,3 m², avec 4 chambres, ce beau 5.5 pièces offre une ambiance chaleureuse et accueillante.
Il est réalisé dans un style contemporain, élaboré avec des matériaux de haute qualité.
Idéal pour savourer votre café matinal ou vous détendre en fin de journée, un grand balcon de 14,5 m² complète ce bien.
Le bâtiment est équipé d'un système de refroidissement free cooling disponible pour chaque appartement. Le rafraîchissement via le chauffage au sol existant est la solution économique pour rendre la température ambiante plus confortable en été.
Situation
Prévus dans un environnement calme, cet immeuble de 15 appartements, doté d’un parking souterrain commun est idéalement implanté en dehors de la circulation.
L'arrêt de bus pour l'école secondaire et la gare de Romont est situé à 200 mètres.
La majorité des commodités de la commune de Siviriez se trouve dans un rayon de 500 mètres.
L'arrêt de bus pour l'école secondaire et la gare de Romont est situé à 200 mètres.
La majorité des commodités de la commune de Siviriez se trouve dans un rayon de 500 mètres.
Commodités
Environnement
- Village
- Verdoyant
- Commerces
- Banque
- Restaurant(s)
- Arrêt de bus
- Enfants bienvenus
- Aire de jeux
- Ecole maternelle
- Ecole primaire
- Centre sportif
- Sentiers de randonnée
- Monuments religieux
Extérieur
- Balcon(s)
- Silencieux/tranquille
- Verdure
Intérieur
- Accès pour handicapés
- Ascenseur
- Parking souterrain
- Cuisine ouverte
- Cave
- Grenier
- Local à vélos
- Abri PC
- Réduit
- Partiellement meublé
- Triple vitrage
- Lumineux
Equipement
- Cuisine équipée
- Cuisine agencée
- Plaques vitrocéramiques
- Four
- Réfrigérateur
- Congélateur
- Lave-vaisselle
- Branchements pour colonne de lavage
- Baignoire
- Douche
- Panneaux photovoltaiques
Sol
- Carrelage
- Parquet
Etat
- Neuf
Exposition
- Nord
- Ouest
Ensoleillement
- Optimal
- En soirée
Vue
- Belle vue
Style
- Moderne
Distances
Gare
4.5 km
Transports publics
200 m
Autoroute
8.5 km
Jardin d'enfants
4.5 km
Ecole primaire
100 m
Ecole secondaire
4 km
Commerces
300 m
Poste
300 m
Banque
100 m
Restaurants
200 m
Parc / Espace vert
500 m



