Descriptif
Au chemin des Terreaux à Ursy, dans la zone commerciale, nous vendons cet espace brut de 200m2, au 1er étage, dans immeuble neuf, à aménager selon vos besoins.
Bénéficiant d’une excellente visibilité depuis la route principale Ursy – Rue, il représente l'investissement idéal pour votre commerce, votre bureau ou vos activités de service.
Caractéristiques principales de cet espace :
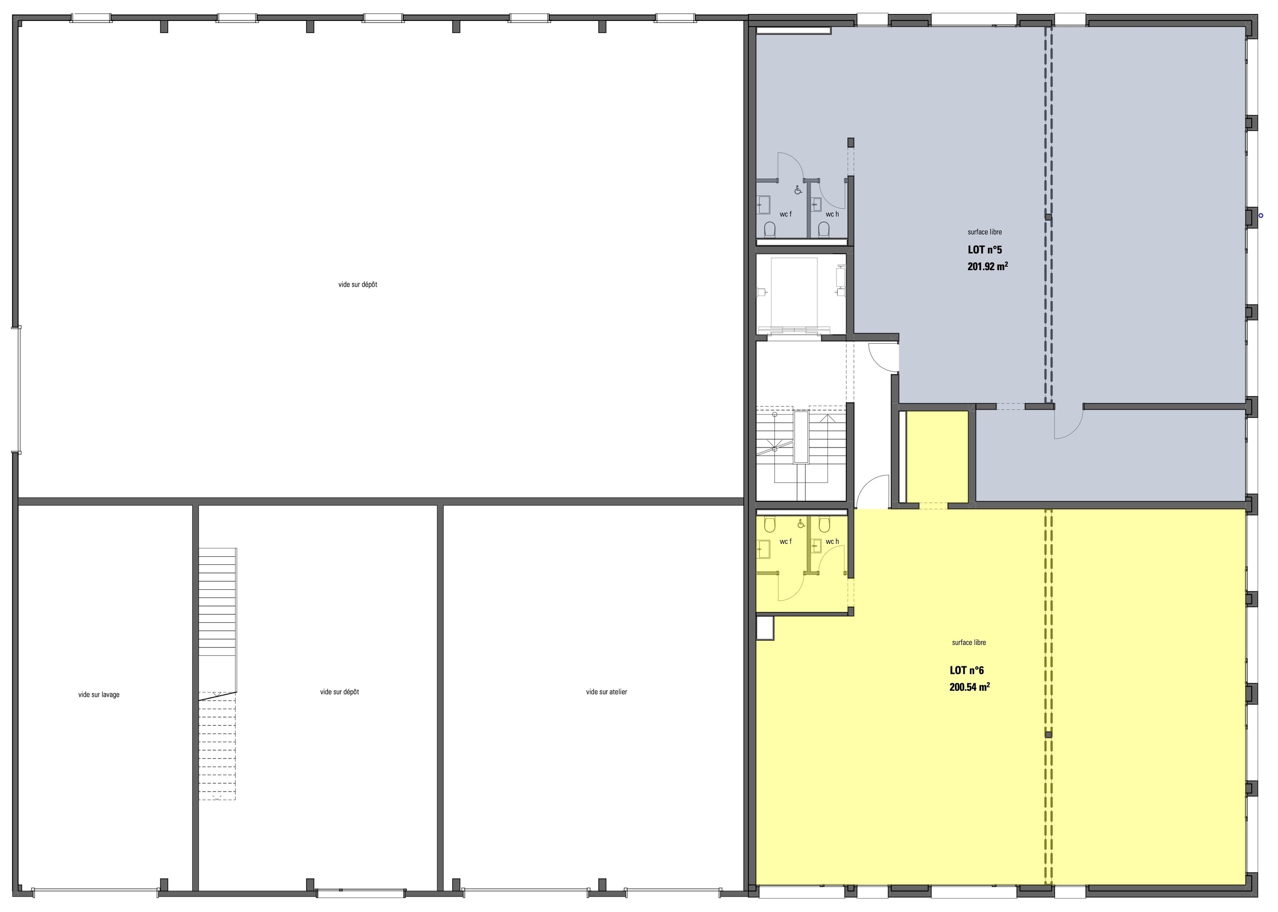
Surface de 200 m² livrée brute, aménageable au gré du preneur
Un WC et un WC handicapés aménagés
Pré-installation pour cuisine
Vitré sur les faces Sud et Est
Visibilité optimale avec la façade principale (situé à l'Est) exposée sur un axe très fréquenté
Construction moderne, idéale pour toute activité commerciale, de santé, de bien-être ou de bureaux
Grand parking souterrain avec de nombreuses places disponibles pour le personnel et les clients
Avantages :
Local neuf, personnalisation totale de l’aménagement intérieur
Situation privilégiée dans une région dynamique
A vendre dans le même immeuble :
Espace commercial de 245m2 au rez-de-chaussée
Magnifique appartement de 5.5 pièces au 2ème
Bénéficiant d’une excellente visibilité depuis la route principale Ursy – Rue, il représente l'investissement idéal pour votre commerce, votre bureau ou vos activités de service.
Caractéristiques principales de cet espace :
Surface de 200 m² livrée brute, aménageable au gré du preneur
Un WC et un WC handicapés aménagés
Pré-installation pour cuisine
Vitré sur les faces Sud et Est
Visibilité optimale avec la façade principale (situé à l'Est) exposée sur un axe très fréquenté
Construction moderne, idéale pour toute activité commerciale, de santé, de bien-être ou de bureaux
Grand parking souterrain avec de nombreuses places disponibles pour le personnel et les clients
Avantages :
Local neuf, personnalisation totale de l’aménagement intérieur
Situation privilégiée dans une région dynamique
A vendre dans le même immeuble :
Espace commercial de 245m2 au rez-de-chaussée
Magnifique appartement de 5.5 pièces au 2ème
Situation
Dans la zone industrielle des Terreaux, commune d'Ursy
Commune
https://www.ursy.ch
Commodités
Environnement
- Zone industrielle/commerciale
- Commerces
- Banque
- Poste
- Restaurant(s)
- Gare
- Arrêt de bus
Extérieur
- De la route
- Construit sur un terrain plat
Intérieur
- Ascenseur
- Parking souterrain
- WC visiteurs
- Lumineux
Equipement
- Cuisine à aménager
- WiFi
- Panneaux photovoltaiques
- Connexion Internet
- Borne voiture électrique
Sol
- A choix
Etat
- Neuf
Exposition
- Sud
- Est
Ensoleillement
- Favorable
Distances
Gare
1.8 km
Commerces
1 km
Poste
850 m
Banque
1.1 km
Restaurants
900 m

